Judería de Híjar | Jewish Quarter of Híjar

11

SINAGOGA DE HÍJAR (Ermita de San Antón)

Ante sus ojos, la sinagoga mejor conservada de la Corona de Aragón. Sobre cimientos de época romana se eleva esta joya del arte mudéjar datada en 1410. En España, solo Toledo y Córdoba mantienen edificios similares a éste. Sus pinturas son únicas. Tras la Expulsión, se convirtió en convento provisional de los franciscanos y también en ermita, función que ha mantenido hasta hoy.

Una sinagoga documentada desde 1410

Fachada de la iglesia de San Antonio, antigua sinagoga medieval de Híjar, vista desde la plaza de San Antón. La imagen muestra la entrada principal y los elementos constructivos conservados tras la última restauración integral realizada en 2021. Foto: Archivo del Centro de Estudios del Bajo Martín

Según la documentación conservada en el Archivo Diocesano de Zaragoza, el 8 de julio de 1410 el arzobispo García de Heredia concedió permiso a la aljama judía de Híjar para reparar su sinagoga, que se encontraba en mal estado debido a su antigüedad. La solicitud fue presentada por los representantes comunitarios encabezados por Açach Chinillo, quienes argumentaron que las deficiencias del edificio impedían la celebración adecuada de la oración.

El arzobispo autorizó las obras siempre que se limitaran a la reparación y consolidación del espacio de culto “según la ley de Moisés”. Esta es la única fecha segura para la datación del edificio, que constituye un ejemplo excepcional en la Corona de Aragón y uno de los pocos templos judíos conservados en España junto a los de Toledo y Córdoba.

Como era habitual en el mundo medieval, la sinagoga no era únicamente un lugar de oración, sino también un espacio de reunión, enseñanza y gobierno de la comunidad. Su relevancia explica que, tras la expropiación decretada por Fernando II tras la expulsión, se garantizara un uso público del edificio.

Transformaciones tras 1492: de sinagoga a ermita

Tras la expulsión o conversión de la comunidad judía, la antigua sinagoga pasó por distintas fases de ocupación. En 1517, el duque Luis Fernández de Híjar permitió a una comunidad franciscana instalarse temporalmente en la ermita y en lo que en la actualidad se conoce como Casa del Rabí, hasta que se concluyera su nuevo convento en 1524, situado junto al camino de La Puebla de Híjar.

Aspecto interior de la ermita de San Antonio Abad antes de su cierre al público en 2010. El retablo dedicado al santo ocupaba el lugar del antiguo Hejal de la sinagoga medieval, ocultando las pinturas y estructuras originales que han salido a la luz tras la intervención. Foto: Beatriz Severino, periódico La Comarca

El testamento ducal consagró formalmente el edificio como Iglesia de San Antonio de Padua, afirmando que se erigía “en la casa que en tiempos pasados era sinagoga de judíos”. Esta denominación explica la posterior vinculación devocional del lugar con San Antón, así como la pervivencia de su culto entre los vecinos del barrio.

Las sucesivas reformas fueron alterando la estructura original. Tanto la entrada actual como algunos elementos de fachada pertenecen a fases posteriores (siglos XVI–XX). En las décadas de posguerra se añadieron las escaleras del coro y otros refuerzos estructurales. Pese a todo, la nave conserva dos muros originales, los arcos diafragma y gran parte de la techumbre, lo que permite identificarla de forma sólida con la sinagoga medieval.

La iglesia de San Antonio Abad (antigua sinagoga de Híjar) se cerró al culto el 17 de enero de 2010, tras el derrumbe parcial de su techumbre durante las fiestas de San Antón, debido al grave deterioro estructural que presentaba el edificio. Las obras de rehabilitación comenzaron en 2017 y concluyeron en 2021, un proceso tras el cual la prensa local subrayó que el templo había permanecido cerrado durante once años. La última fase de intervención se desarrolló entre 2024 y 2025, centrada en la restauración de las pinturas murales del muro del Hejal. Gracias a estos trabajos, salieron de nuevo a la luz tanto los restos pictóricos originales de la sinagoga medieval como las capas decorativas añadidas durante la etapa cristiana, que durante siglos habían ocultado las pinturas hebreas.

 Arqueología y arquitectura: lo que realmente se conserva

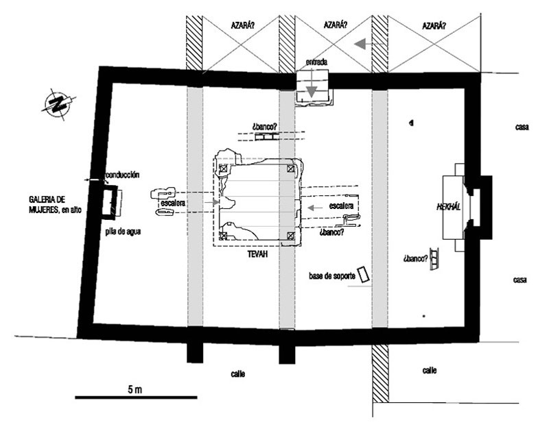
Planta de la sala de oración de la antigua sinagoga de Híjar, elaborada a partir de los resultados de las excavaciones y estudios arquitectónicos recientes. En ella se identifican la ubicación del Hejal, la tevah o estrado central para la lectura de la Torá, los accesos al edificio y el espacio asociado al antiguo patio o azara, así como otros elementos vinculados al uso ritual y a la disposición interior del templo. ©Antonio Hernández Pardos 2025.

Sección longitudinal de la antigua sinagoga de Híjar, que muestra la estructura interior original del edificio: un gran arco diafragma apuntado sosteniendo la techumbre de madera, con el acceso al patio a la izquierda y la fachada hacia la calle a la derecha. Esta configuración arquitectónica es característica de las sinagogas medievales conservadas en la Corona de Aragón. ©Antonio Hernández Pardos 2025.

Las excavaciones iniciadas a partir de 2017 han permitido delimitar las partes del edificio que pertenecen con certeza al siglo XV:

  • Los arcos diafragma apuntados que sostienen la techumbre.
  • El muro oriental, donde se situaba el Hejal (armario para los rollos de la Torá).
  • Gran parte de la techumbre original, salvo el tramo que da a la plaza.
  • La fachada interior hacia el antiguo patio o azara, al que se accedía por la actual calle Azaguán.

En este sector se localizaron ta  mbién restos del pavimento original de yeso compacto y las bases de la tarima donde se situaba la bimá o tevá, el estrado donde se leía la Torá.

Restos arqueológicos aparecidos en la excavación de 2017 en la antigua sinagoga de Híjar. En el centro se observan las huellas constructivas de la bimá —la tarima desde la que se leía la Torá— y, a ambos lados, las improntas de los anclajes de las escaleras que daban acceso a ella.

Recreación de cómo pudo ser la sinagoga medieval de Híjar, con la bimá situada en el centro del espacio y una réplica de la menorá representada en el muro del hejal. La secuencia fue rodada en un plató en Teruel y en la sinagoga Ben Zakkai, perteneciente al conjunto de sinagogas sefardíes de Jerusalén. Fragmento del documental Libros: El legado de Alantansí (José Ángel Guimerá, 2024).

En 2018, las catas arqueológicas practicadas en los muros del edificio revelaron indicios decisivos: bajo los enlucidos posteriores aparecieron restos significativos de las antiguas pinturas murales de la sinagoga, ocultas durante siglos bajo capas de decoración cristiana añadidas entre finales del siglo XV y el XVI. El hallazgo confirmó que una parte esencial de la iconografía original había quedado preservada bajo estos revestimientos.

Tras el proceso de restauración ejecutado entre finales de 2024 y comienzos de 2025, en el muro del Hejal salieron a la luz, bajo sucesivas capas de cal y yeso, unas pinturas murales de comienzos del siglo XV.

Lado derecho del testero de la sinagoga (muro sureste). Foto: @JAGui.es

En el lado derecho apareció un fragmento epigráfico hebreo perteneciente al Salmo 106:3 —«Dichosos los que guardan el juicio y practican la justicia en todo tiempo»— encabezado por lo que parece ser la palabra אַשְׁרֵי (“Ashré”, “Dichosos…”). Esta aparece sin su álef inicial tanto en la franja decorativa superior como al inicio de la línea del versículo. La forma completa del término vuelve a escribirse al final de la frase, tras el signo separador de tres puntos, seguida de una expresión incompleta en la que se distingue la secuencia …שביביו (“sh-bee-bee-v”…).

En la zona central del testero se conservan los restos del enmarque gótico tardío del Hejal cristianizado —que interrumpe físicamente la continuidad del versículo hebreo— y, junto a él, a su izquierda, parte de las pinturas judías originales. Entre ellas, destaca la representación de una menorá, cuyas formas y gama cromática coinciden con la decoración del “Ashré” del lado derecho, confirmando que ambos elementos pertenecían a un mismo programa iconográfico sinagogal del siglo XV.

Las pinturas cristianas del siglo XV–XVI que cubrieron por completo la menorá fueron retiradas cuidadosamente durante la restauración. Los fragmentos extraídos, perfectamente conservados, se han recolocado dentro de un panel, en el muro lateral izquierdo —el mismo que servía como acceso principal a la antigua sinagoga— con el fin de  permitir apreciar la secuencia completa de estratos históricos: la iconografía judía original, su ocultación mediante decoraciones cristianas y, finalmente, la recuperación contemporánea del conjunto. La superposición de todas estas capas —la judía original, la cristiana tardomedieval y las intervenciones posteriores— explica la excepcional preservación del muro del Hejal. El resultado constituye uno de los hallazgos murales más relevantes del patrimonio judío conservado in situ en Europa.

Fachada de la iglesia de San Antonio, antigua sinagoga medieval de Híjar, vista desde la plaza de San Antón. La imagen muestra la entrada principal y los elementos constructivos conservados tras la última restauración integral realizada en 2021. Foto: Archivo del Centro de Estudios del Bajo Martín

El edificio estuvo históricamente vinculado a la llamada Casa del Rabí —hoy desaparecida—, cuya identificación como residencia rabínica procede únicamente de la tradición oral. Las investigaciones recientes confirman, además, que algunas celosías y elementos adyacentes corresponden a reformas de época moderna (siglo XVI), y no a la etapa medieval.

Su pervivencia —entre transformaciones, usos cristianos, restauraciones y memoria vecinal— convierte al edificio en un espacio único donde confluyen historia, fe, convivencia y continuidad cultural.

Al fondo se distingue la antigua ermita de San Antonio Abad —levantada sobre la que fue la sinagoga medieval de Híjar— antes de sus reformas del siglo XX. Imagen realizada por José Antonio Dosset entre 1880 y 1910 (Archivo Dosset, Instituto de Estudios Turolenses).

Enlaces de interés

Bibliografía básica

Para quienes deseen profundizar en la historia de esta judería, se recomienda la siguiente bibliografía fundamental: